豪森是一家專業生產醫院衛生間門的生產廠家,豪森廠家經過多年的合理設計與研究,成功的研制出了適用于醫院衛生間的百葉門、防水防潮樹脂門、醫院CPL抗菌板門,豪森醫院衛生間門經過多年的實驗,該款衛生間專用門使用壽命可達20年以上,是普通木門的4倍,以下著重介紹豪森衛生間門的幾大特點:
1
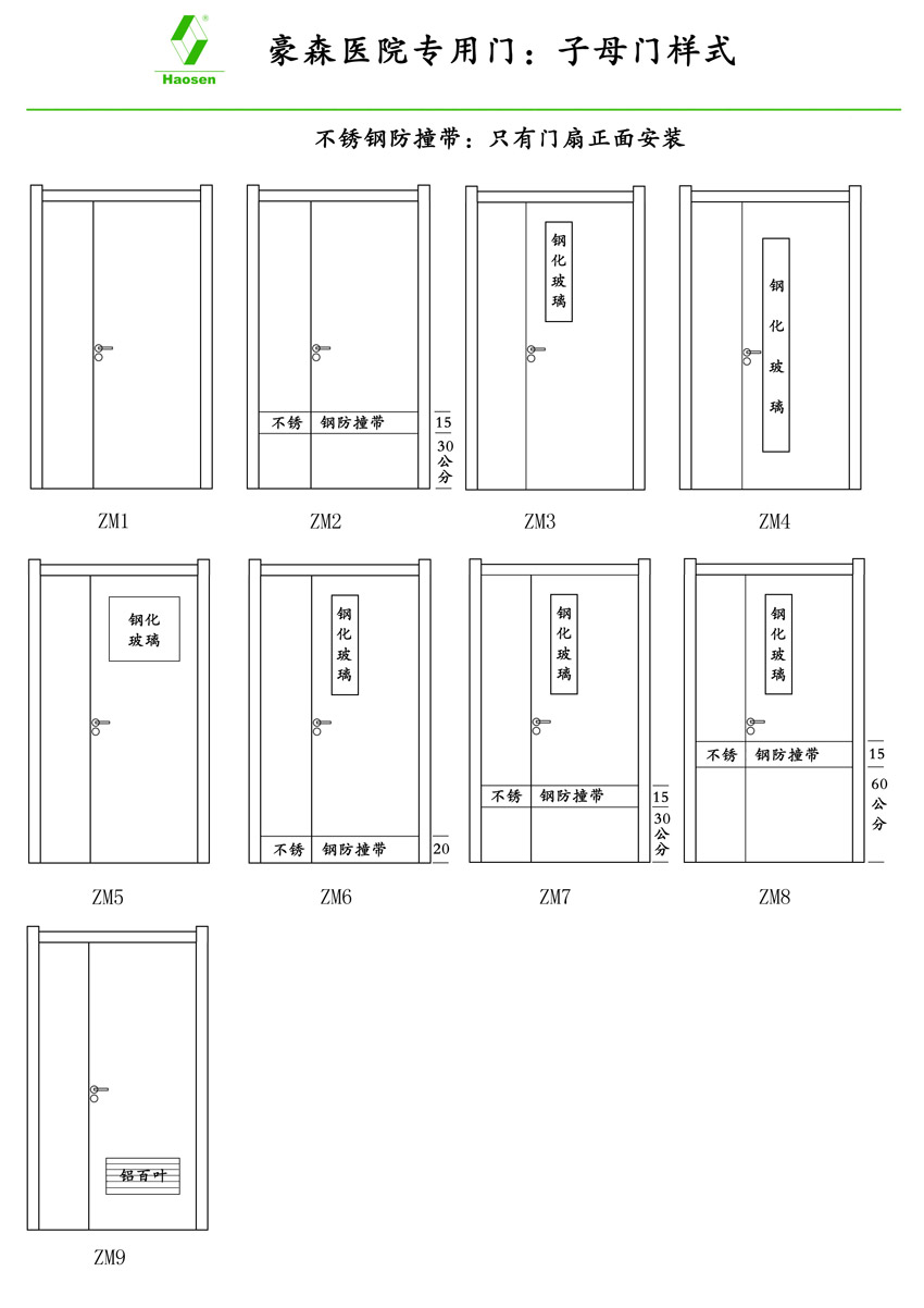
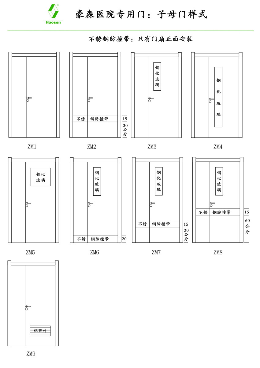
醫院專用門專用不銹鋼防撞條—高硬度、耐磨防刮
醫院專用門不銹鋼防撞帶分別安裝在門扇的底部距地面200mm內、距地面600mm內、距地面1000mm內、為容易被手推車碰撞、刮傷的部位。豪森
醫院專用門在門扇此距離安裝正宗304#不銹鋼防撞帶,完全避免了醫用手推車進出時對門扇的碰撞后出現的掉漆、掉木屑等現象,了醫院專用門門扇的美觀。
2 醫院專用門專用CPL抗菌板、HPL防火板— 抗菌防火更安全
1.醫院專用門專用CPL抗菌板:用CPL抗菌板制作的醫院專用門,抗菌與防撞性能優良,防潮易于清潔。
2.醫院專用門專用HPL防火板:用HPL防火板制作的醫院專用門,耐沖擊、防火、耐刮傷性能優良,防火指標達到國家級標準。公共場所對室內門的防火性能非常重視,森工醫院專用門材質采用的是高品質防火板,防火指標達到國家級認證,可為消防撲救爭取更多的時間,這也是普通木門無法比擬的。
3
豪森醫院專用門雙層保護——耐酸堿、耐刮傷、易于清潔。
1.醫院專用門門扇采用全封閉式的設計,無縫隙,美觀安全,便于保養。
2.醫院專用門采用高硬度復合板,材質硬度高,耐酸堿,對于一些難以清洗的污濁物可采用清洗液清洗。
4
豪森醫院專用門門扇內采用鎂鈦合金鋁骨架結構——經久耐用不變形!
因為醫院為公共場所,門扇很容易損壞,變形。為了保障門的持久耐用,
豪森醫院專用門根據力學原理,在門扇內部增加兩條特制鎂鈦合金鋁管,以平衡門扇內應力,門扇永不變形。
5 豪森醫院專用門色彩豐富:
我們的醫院專用門表面材質色彩豐富亮麗,院方可以根據科室選擇產品顏色。比如粉色可以緩解精神緊張,給人以嫻雅、溫馨的感覺,緩解心理壓力可使脈率減慢,消除緊張情緒,故婦產科病房以粉色為主。
6 豪森醫院專用門綠色環保:
我們的醫院專用門是通過國家鑒定的綠色環保產品,并帶有國家有關部門許可的綠色環保標志。所以我們的醫院專用門用在醫院是非常安全放心的。























